【商談中】立科町芦田 戸建て住宅 7K 眺めの良い2階建て古民家
浅間山を望む里山の古民家 立科町・広い畑付き7K住宅
構造在来木造2階建て
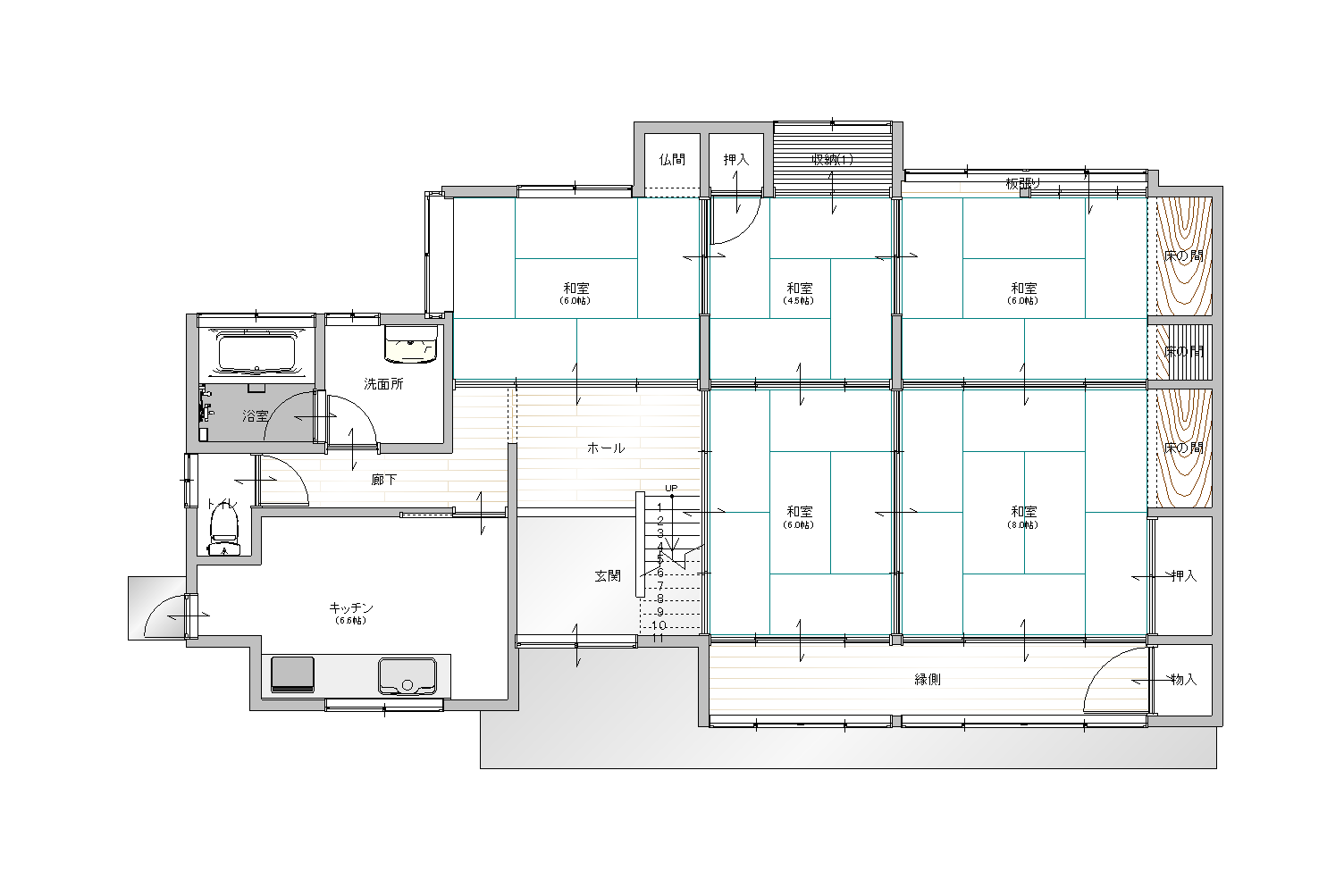
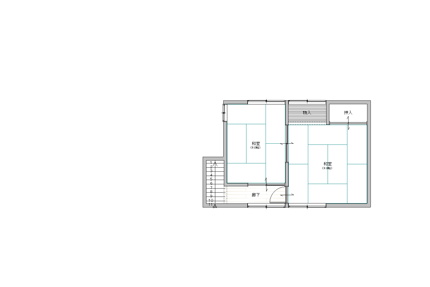
間取り 7K
築年月1957年10月 築68年3ヶ月
土地面積963.97㎡(291.60坪)
建物面積132.45㎡(40.07坪)
価格 475万円
最寄駅:佐久平駅
所在地:長野県北佐久郡立科町芦田
所在地:長野県北佐久郡立科町芦田
| 所在地 | 長野県北佐久郡立科町芦田 |
|---|---|
| 土地面積 | 963.97㎡(291.60坪) |
| 建物面積 | 132.45㎡(40.07坪) |
| 構造 | 在来木造2階建て |
| 間取り | 7K |
| 築年月 | 1957年10月(築68年3ヶ月) |
| 設備等 | ガス給湯器, 照明器具, プロパンガス, 公営水道, 公共下水, 庭, エアコン, 付属建物 |
| 地目 | 宅地 |
| 地勢 | 傾斜地 |
| 都市計画 | 非線引き区域 |
| 用途地域 | 指定なし |
| 道路 | 東側 幅員3.8m 公道 接面38m |
| 取引態様 | 媒介 |
| 物件情報 | 長野県立科町にある物件のご紹介です。 立科町は、美味しいお米やりんごに恵まれ、水道水までも天然水のように美味しい、自然豊かなまちです。町は佐久、上田、小諸、東御のほぼ中心に位置しており、新幹線の停車する佐久平駅や上田駅から車で約30分と、アクセスも良好です。 本物件は、立科町の中でも歴史ある「古町」の脇に位置しています。2階や庭の植栽の合間からは、浅間山をはじめとする立科町の美しい里山の風景を望むことができます。 一方で、本物件は土砂災害特別警戒区域(いわゆるレッドゾーン)内に位置している点にご留意ください。 隣接する農地・畑(約333㎡)も含まれており、家庭菜園には十分な広さがあります。家の裏で四季折々の野菜づくりを楽しむことも可能です。 築68年の建物ですが、2025年5月には給湯器やエアコンなどのリフォームが実施されております。 間取りはゆとりのある7Kで、移住先としてご検討いただける古民家です。 ■備考 ・ゴミステーションは物件から500mの位置にあります。(古町コミュニティセンター付近) ・土砂災害特別警戒区域(レッドゾーン)に位置しています。 ・隣接農地、畑、333㎡も含みます。 ■周辺環境は以下の通りです。 ・ツルヤ立科店 1.5km ・コメリ立科店 1.6km ・クスリのアオキ立科店 1.5km ・立科小学校 2.8km ・立科中学校 3.0 km ・蓼科高等学校 3.1km ・浅間総合病院 18.3km ・JR北陸新幹線佐久平駅 17.7 km ・しなの鉄道田中駅 13.4km ・中部横断道中佐都IC 19.6km |
| Youtube | https://youtu.be/BH8SbVQX9uI |


















