立科町茂田井 戸建て住宅 7K 歴史ある街並み 古民家
歴史ある中山道「茂田井間の宿」に佇む、築100年超の古民家
構造在来木造2階建て
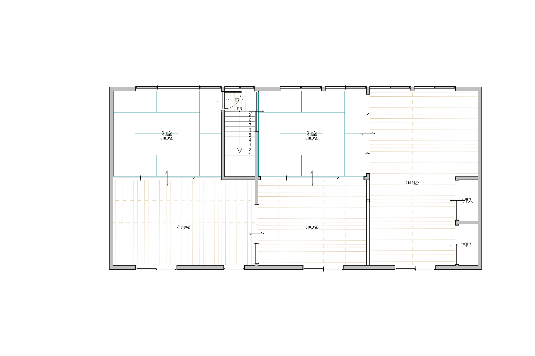
間取り 7DK
土地面積616.89㎡(186.61坪)
建物面積240.62㎡(72.79坪)
価格 980万円
最寄駅:佐久平駅
所在地:長野県北佐久郡立科町茂田井
所在地:長野県北佐久郡立科町茂田井
| 所在地 | 長野県北佐久郡立科町茂田井 |
|---|---|
| 土地面積 | 616.89㎡(186.61坪) |
| 建物面積 | 240.62㎡(72.79坪) |
| 構造 | 在来木造2階建て |
| 間取り | 7DK |
| 設備等 | 公営水道, 公共下水, エアコン |
| 地目 | 宅地 |
| 地勢 | 平坦 |
| 都市計画 | 非線引き区域 |
| 用途地域 | 指定なし |
| 道路 | 南側 幅員3.6m 公道 接面20m |
| 取引態様 | 媒介 |
| 物件情報 | 長野県立科町にある物件のご紹介です。 立科町は、美味しいお米やりんごに恵まれ、水道水までも天然水のように美味しい、自然豊かなまちです。町は佐久、上田、小諸、東御のほぼ中心に位置しており、新幹線の停車する佐久平駅や上田駅から車で約30分と、アクセスも良好です。 本物件は、立科町の中でも歴史ある中山道の「茂田井間の宿(もたいあいのしゅく)」の通り沿い位置しています。茂田井間の宿は望月宿・芦田宿で対応できない大通行の際に、「間の宿」として使われていました(佐久市HP参照)。物件前の道は車一台通れるほどで(約3.6m)狭いですがその理由は昔ながらの街並み、通りが残されているからです。白壁土蔵や昔ながらの造り酒屋が軒を連ね風情ある街並みが今でも残っております。 物件に関して、およそ築110年を超える歴史ある古民家です。給湯器やエアコン、トイレは下水道となっております。 また縁側は広く取られており、庭からの光が程よく入り、非常に過ごしやすい場所となっております。 間取りはゆとりのある7Kで、移住先としても店舗利用としてもご検討いただける古民家です。 立科の歴史ある古道沿いの築100年を超える古民家でぜひ暮らしてみませんか? ■備考 ・築年数:約110年(詳細は不明) ・土地面積(宅地):616.89㎡ ・建物面積 1F:134.84㎡ 2F:105.78㎡ (配置図も参照ください) ・風呂場は石油給湯器 ・キッチンはガス給湯 ・北側窓はペアガラス ・倉庫がございます。 ・内覧をご希望の際は日程調整のうえご案内いたします。 ・賃貸物件としても公開中の物件です。 ■周辺環境は以下の通りです。 ・ツルヤ立科店 1.7km ・コメリ立科店 1.8km ・クスリのアオキ立科店 1.6km ・立科小学校 3.1km ・立科中学校 2.4 km ・蓼科高等学校 3.6km ・浅間総合病院 16.5km ・JR北陸新幹線佐久平駅 15.9km ・しなの鉄道田中駅 12.3km ・中部横断道中佐都IC 14.7km |



















