立科町山部 古民家住宅 母屋と離れ 合計6,782㎡(約6.84反)の畑と田んぼ付き
古民家住宅 母屋と離れ 合計6,782㎡(約6.84反)の畑と田んぼ付き
構造在来木造2階建て
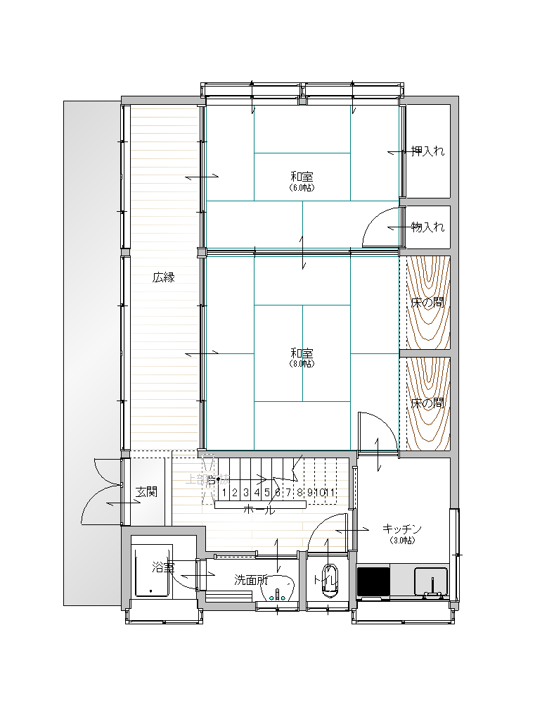
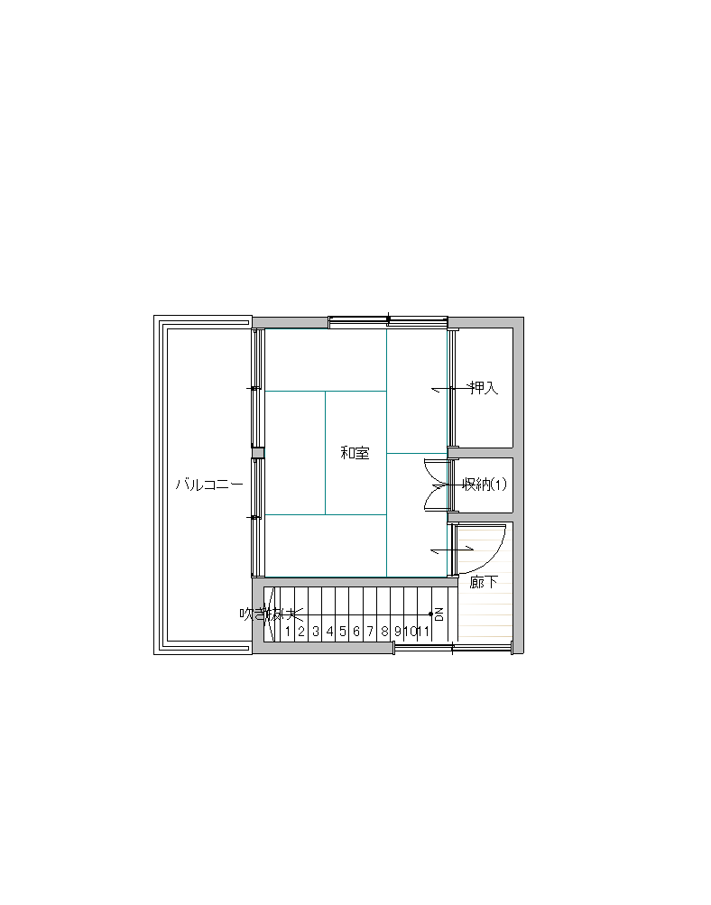
間取り 3DK
築年月1981年1月 築45年2ヶ月
土地面積548.89㎡(166.04坪)
建物面積117.15㎡(35.44坪)
価格 260万円
最寄駅:佐久平駅
所在地:立科町山部
所在地:立科町山部
| 所在地 | 立科町山部 |
|---|---|
| 土地面積 | 548.89㎡(166.04坪) |
| 建物面積 | 117.15㎡(35.44坪) |
| 構造 | 在来木造2階建て |
| 間取り | 3DK |
| 築年月 | 1981年1月(築45年2ヶ月) |
| 設備等 | ガス給湯器, 石油給湯器, バルコニー, プロパンガス, 公営水道, 縁側 |
| 地目 | 宅地 |
| 地勢 | 平坦 |
| 都市計画 | 非線引き区域 |
| 用途地域 | 指定なし |
| 道路 | 南側 幅員3m 公道 接面32m |
| 取引態様 | 媒介 |
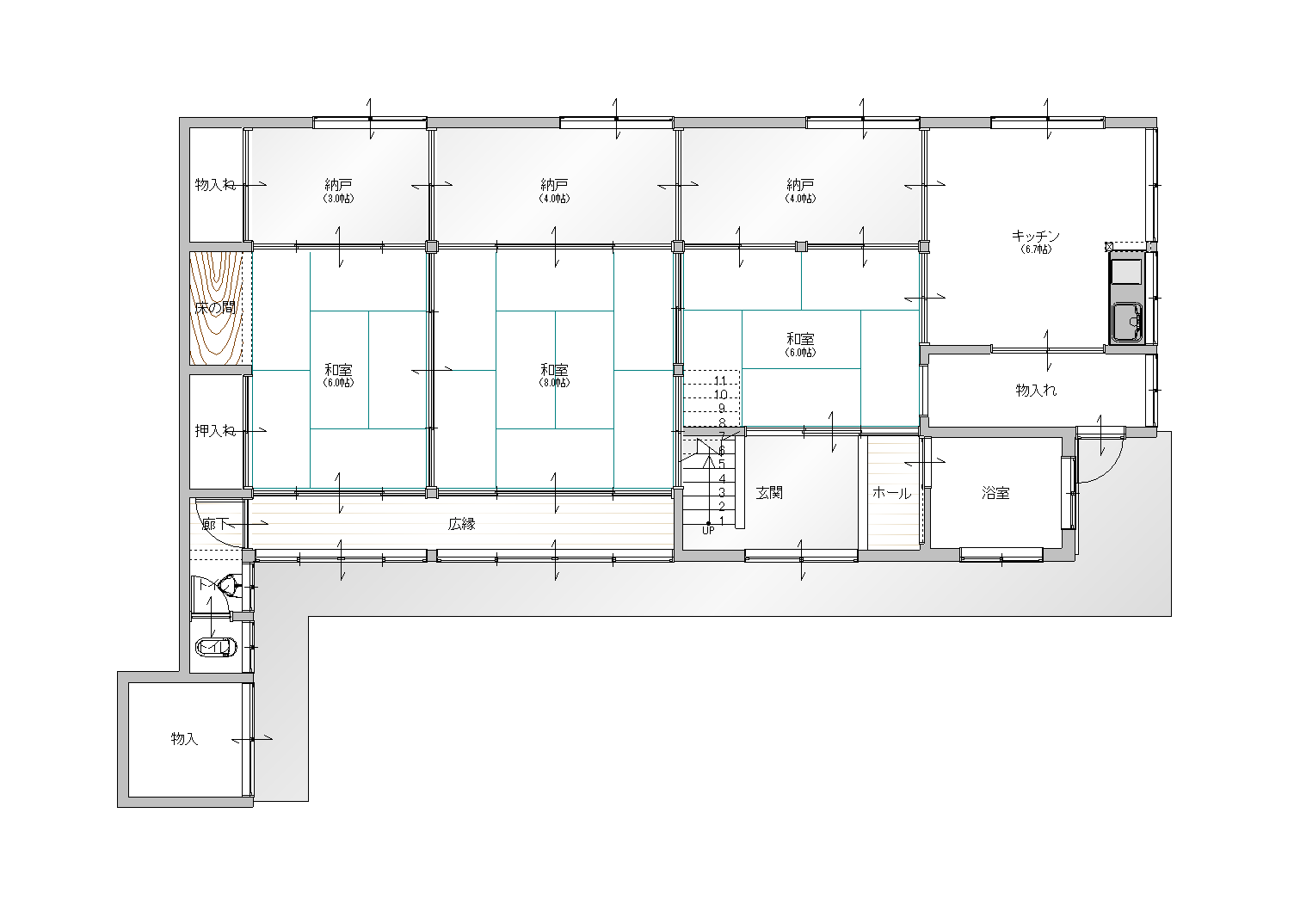
| 物件情報 | 母屋:木造瓦葺2階建て 1F:92.31㎡ 2F:24.84㎡ 合計:117.15㎡ 離れ:木造瓦葺2階建て 1F:53.78㎡ 2F:16.56㎡ 合計:70.34㎡(登記簿より) 1979年新築(築47年) 物置:軽量鉄骨造亜鉛メッキ鋼板葺平家建 26.12㎡ 農地:畑合計3873㎡、 田合計2,909㎡、 山林239㎡ ■備考 ・母屋の築年数は不明となっております。 ・販売価額には、上記の離れ、物置、農地、山林を含みます。 ・農地については、農地法の許可が必要です。 ・給湯器等設備が老朽化しております。 ・建具や床のたわみが見られます。 ・トイレは母屋と離れ共に汲み取りとなっております。 ■周辺環境は以下の通りです。 ・ツルヤ立科店 2.4km ・コメリ立科店 2.2km ・クスリのアオキ立科店 2.2km ・立科小学校 2.2km ・立科中学校 2.8 km ・蓼科高等学校 2.6km ・浅間総合病院 19.0km ・JR北陸新幹線佐久平駅 18.6 km ・しなの鉄道田中駅 13.6km ・中部横断道中佐都IC 17.2km |
| 物件番号 | MTA1041 |



















